Характеристики
Мощность электродвигателя, кВт
—
4.0
Максимальная производительность, тыс.м3/час
—
3.5
Напряжение питания, В
—
220/380
По запросу
Нашли дешевле?
Под заказ
Наши менеджеры обязательно свяжутся с вами и уточнят условия заказа
Описание
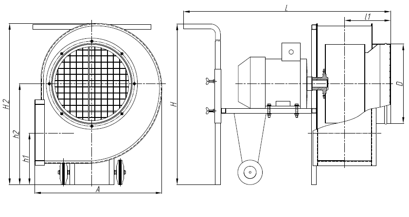
Габаритные размеры

| L | Н | H2 | A | h | D | Вес, кг, не более |
| 780 | 830 | 500 | 424 | 300 | 250 | 45 |
